




Something was stirring in south west London on Saturday. It was the eve of Storm Ciara but the skies above the Wandle could not have been bluer, or it’s waters more serene and twinkly as we followed the riverside path from Summerstown to Colliers Wood. This was a road once trodden by Francis Kitz and we were on the ‘Wandle Wake-Up’, kick-starting our celebration of his remarkable life and work.

I first came across him seven years ago. His great granddaughter Lynda was working with me on a project to acknowledge a local Second World War bomb incident. Three of the 36 people killed when a V2 rocket landed on Hazelhurst Road were members of her family. We did them proud, various commemorations and a plaque at the site of where the bomb landed have recalled that tragic day and those who lost their lives. In our countless email exchanges Lynda told me about the father of one of the victims, another family member of whom she was immensely proud. The more I heard about him, the more I liked the sound of him myself. Francis Kitz was putting himself on the line in a very different way from the Summerstown182 First World War casualties we were researching at the time, but he had my equal respect. I wrote a post on my blog about him and introduced him on my Walks as ‘The Summerstown Anarchist’.

That was probably a bit unfair – Merton was more his orbit and there was much more to Frank than anarchy. What kept the pot boiling was the search for a photo of him. I joined family members in the hunt which has certainly taken us to some interesting places, but he remains elusive. I quite like that, always one step ahead of his pursuers. What clinched the magic though was a day a few years ago when we were driving down Merton High Street and I pointed out one of the locations associated with him. At that precise moment a Sex Pistols song came on the radio – what else but ‘Anarchy in the UK’?


Photo by Madeline Meckiffe
Interest in Kitz fired up again when we met ‘Made in Merton’ last year at the brilliant Merton Heritage Discovery Day. They were demonstrating some great ways of showcasing the beautiful patterns created by Wandle workers to a wider audience. I was blown away by images they had produced of William Morris fabric designs blasted all over a building. They saw what I had written about Frank and wondered if we could do something together and perhaps put up a plaque alongside a community print-making activity. Why not? We planned some walks to raise funds and that’s how we all came to meet up for the ‘Wandle Wake-Up’ and a chance to get up close to some of the locations and places where Frank Kitz had lived and worked.

We set off past Blackshaw Road, heading down Plough Lane towards the Wimbledon Stadium development. It wasn’t mentioned, but thoughts must have been on the events of 1944. Not far beyond the Summerstown Towers was No36 Hazelhurst Road, destroyed by the rocket and where Annie, the mother of Frank’s ten children had lived for 30 years. Our route was overshadowed by the towering blocks and cranes of the Stadium and its frantic construction work. In six months time, if all goes to plan AFC Wimbledon should be back on their home turf after almost three nomadic decades. Their ongoing efforts to raise funds and keep the club owned by its fan base is surely something Kitz would have admired. A dramatic left turn was made as we encountered the Wandle and entered a tranquil and peaceful world, very far removed from the choking traffic and noise on Plough Lane. The path quickly lead us to the dramatic ‘meeting of the waters’ – the spot where the River Graveney emerges from a concrete channel and merges with the River Wandle. One attendee remarked that the previous week they had visited the confluence of the Nile but that this was so much more uplifting.


As always when on a Wandle tour, I couldn’t resist mentioning Eliza James, ‘The Watercress Queen’. Her main fields were a little bit further up the river but beds where this was grown would have been on both sides of the river and a number of other locations close to the Merton Printworks. Frank Kitz would have been very familiar with it and I’m sure well aware of its magic powers.


After negotiating the Wandle Meadow Nature Park, for so long the home of the sewage treatment works, we crossed the river over a bridge dedicated to the late Colliers Wood councillor, Gam Bahadur Gurung. Formerly a Gurkha and fittingly celebrated with some colourful Nepalese prayer flags fixed to the bridge. Just before the Connolly Mill we emerged at the historic Wandle Bank, leading us directly alongside the river to Merton High Street. Here we stopped outside No5, where Lynda’s grandmother was born and she spoke very movingly about Francis Kitz, her great grandfather who had come to live at this address sometime in 1885. It was a very special moment.


We can only touch very briefly here today on the question ‘Who was Frank Kitz?’ but I hope these few words will conjure up some idea of the man himself and perhaps leave you wanting to know more. So, who was Frank Kitz? You could describe him very aptly as a Rebel with a Cause. And what was his cause? A lifetime crusade fighting for the rights of working men, women and children, not just in the South but further afield too: in the North, the Midlands and Wales. In his memoirs Recollections and Reflections, he describes himself as: “an antagonist of the capitalist system who spent the best years of my life in persistent warfare against it”. So, what do we know about him? Well, in spite our very best efforts we have been unable to find a photo of Frank. However, what records do give us, is an insight as to his appearance and personality: ‘A fine burly figure, with a mass of light brown curly hair, blue eyes, rather heavy features, a pleasant, jolly smile’ and ‘A bluff, breezy chap, fond of his beer and jolly company’ and ‘Ebullient and impetuous…’ and ‘One of the wittiest public speakers I have ever known’. Frank Kitz was born in 1849 in Kentish Town, North London. In fact, his real name was Francis Platt, the child of Mary Platt and, we believe, a German émigré. He was brought up in poverty in the West End by his single mother, who was in domestic service, and had to fend for himself at an early age, finding work as an errand boy, porter and messenger. He was fascinated by revolution and it was in his formative years that he witnessed the injustices of society and the stark class divisions of the‘have and have -nots’. It was no surprise that he took the rebellious route he did and championed the causes of the poor. During his tramp around the country he states in his memoirs: ‘I found everywhere the same conditions – the factory with its iron discipline, the mazes of mean streets and insanitary slums for the workers, the enslavement of women and children’.

A dyer by trade, Kitz was employed during the 1880s by William Morris at his Merton Abbey Works. However, he was not just an employee but also a ‘comrade’ helping Morris with propaganda and speeches for the socialist cause. Morris commented: ‘He is certainly somewhat tinged with anarchism… but I like him very much’. Kitz lived his life in poverty and was always a ‘rebel by temperament’. William Morris stated after a visit to Merton: ‘I called on the poor chap at the place where he lived and it fairly gave me the horrors to see how wretchedly off he was, so it isn’t much to wonder at that he takes the line he does’. Frank was a revolutionary who maintained his extreme opinions throughout a lifetime of fierce political activity. His inventiveness, his turn of phrase and way with words made his public speaking so appealing to the crowd. The important point about Kitz, apart from his working-class background is that he LASTED as a revolutionary. He is still as relevant today as he was then. He championed the workers and, with others, helped to lay the foundations of the benefits, rights and freedoms we all enjoy today.

It was fitting at this point that we were joined by David Saxby, historian and archaeologist, who continued a moving eulogy to a dogged and committed campaigner for better working conditions who put the lives of others above any care of his own. David also emphasised the closeness of his relationship with William Morris. If anyone on the ‘Wandle Wake Up’ doubted why we wanted to put up a plaque to Francis Kitz they surely knew now that this rebel was a worthy cause.



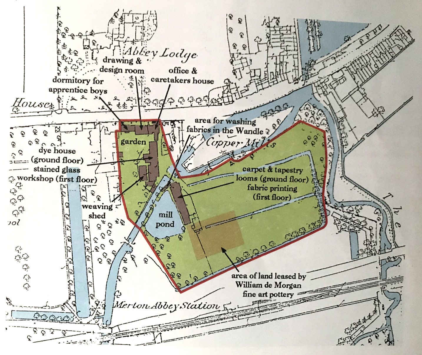
Outside the big Sainsbury’s store, Portia stood on a wooden block and told us about ‘Made in Merton’. How they were awarded a grant in 2018 by the Mayor of London for their ‘Stich, Print, Process’ project which celebrated Merton’s textile heritage. They are now going to add a splash of dramatic colour to our plaque unveiling event and we’re thrilled to be partnering them. We were now in the heart of Frank Kitz’s world on the site of the William Morris Printworks and just a stone’s throw from the dye house where he worked his magic. Across the road was the location of the Merton Abbey branch of the Socialist League and the Surrey Labourer’s Union where Frank would have stood up so many times in support of his comrades. Beside the Gourmet kebab house once ran Wandle Road, another of the places where he lived at No23. Just around the corner from that, another address was 97 Deburgh Road. Newspaper cuttings indicate the family were here from at least 1893 and four years later when their fourteen year old son John Walter Kitz was tragically killed in a railway accident at Wimbledon station. Kitz came to this area in 1885, Morris just a few years before that. Very different backgrounds but a shared vision of better lives for workers.


We crossed the Wandle for the second time and wended our way along the riverside park in front of the superstore – our heads spinning as we tried to imagine the busy printworks and also consider the neighbouring presence a few centuries before that of a gigantic medieval priory. We passed one of the original walls of this to be greeted by some early daffodils as we crossed the Pickle Ditch. We were now on the edge of a retail park, choked with Saturday afternoon shoppers. It was quite fitting given the amount of industrial and retail parks in this vicinity that we should now mention Ronnie Lyon, the man credited with inventing them. Overlooking us at every turn, the massive tower from which he once ran his empire was once voted ‘London’s Ugliest Building’. Now re-clad in white, its filling up with people looking for the best view in Collywood and sits a bit more comfortably in its historic surroundings. The Burger King at this juncture was once a Kitz location, ‘Barnes Cottages’ conveniently opposite The Royal Six Bells pub. That’s where Frank, Annie and eight of their children are recorded in the 1891 census, the homes of Wandle workers surrounded by mills, watercress beds and feeding it all, the twists and turns of the ever-present Wandle. Their cottage looked across at what is now Wandle Park, once the site of Wandle Bank House, whose grounds were the scene of idyllic fishing afternoons enjoyed by Horatio Nelson in the company of his mate James Perry. On a little bit further, on the other side of the road is the Holiday Inn Express, the site of yet another Kitz abode called Clare Villas. In spite of everything being so utterly different, as the river flowed past, it was not hard to imagine all the activity in this area and the busy transient lives of those who supported its industry.



We were now firmly on Stane Street and heading towards Tooting. Straight as an arrow, down the old Roman Road. A final Kitz location here on the site of the world famous Tooting Market was in an area called Angel Court, adjoining the old Angel Inn. That’s long gone and currently the home of Iceland. It was in this pub that Lynda’s parents had their wedding reception.

The final leg of our journey took us up Garratt Lane and back to Summerstown. On the way the family recalled how Annie, the mother of Kitz’s children had sold flowers at Streatham Cemetery. I had heard from some elderly residents that the last nursery in this area had been on the corner of Smallwood Road and there’s a passageway behind this that would have been a cut-through to Hazelhurst Road. Easy to imagine Annie making that short journey every day. It was now dark, but a special moment as we looked across at the cemetery gates and tried to imagine Annie there with her flowers. She passed away in 1940, four years before the bomb and is buried in the cemetery.


Frank himself died in 1923, ending up living a few miles further away in Battersea. The last years were tough on him as he struggled to make a living and at odds with his family. Consolation must have been the great esteem and affection in which he was held by his comrades. This poster dating from 1920 advertises ‘a socialist carnival’ including a ‘Historical Revolutionary Dress Contest’ to raise funds for him at Battersea Town Hall. ‘He is now between 70 and 80 years of age and has worked to the last, although weakened and handicapped with his conditions. It is our wish to aid our old Comrade in his dark years and to make his last days as smooth and pleasant as we possibly can’.

Everyone on the ‘Wandle Wake-Up’ Walk came away feeling they are involved in something quite special. Frank Kitz was someone who helped the workers cause at a time when the breakneck pace of the industrial revolution threatened to crush the working man and woman. He did this at great personal sacrifice. He worked on the Wandle and helped create beautiful textiles and fabrics. He is symbolic of many who did a similar job and our plaque salutes all of them. Please look out for details coming soon about the unveiling event which will be accompanied by a ‘Made in Merton’ community craft activity. It will be a day to remember and probably in mid-September to coincide with the Wandle Fortnight. In the meantime, we need to continue raising funds to pay for this plaque and another great walk is planned. Saturday 25th April is the big day and we are calling it ‘Frankie Goes to Collywood’. Join us at 2pm outside Colliers Wood underground station for a historic tour of the area, featuring the site of the William Morris Printworks and Merton Priory. If you enjoy it, please do throw in a few pounds to help us remember Francis Kitz.


A huge thank you to the Kitz family, particularly Lynda, Sylvia and Debbie for so generously sharing so much of their information and research about Francis Kitz. We are also very grateful to David Saxby whose years of research and publications about the Wandle, its industries and its workers have been such an invaluable resource for so many of us. A big shout to everyone who came on the ‘Wandle Wake-Up’ and donated so generously towards this plaque initiative.
https://www.swlondoner.co.uk/made-in-merton-culture-seeds-fund/